Angeboten wird ein bebaubares und bauträgerfreies Grundstück in Bad Lausick. Das
Grundstück ist besonders geeignet für die Bebauung mit einem Einfamilienhaus. Die
Grundstücksfläche ermöglicht einen 1-2-geschossigen Hausbau mit begrüntem Flachdach und lässt genügend Freiraum für individuelle Gestaltung.
Was bieten wir:
– bebaubares Grundstück mit gültigem Bebauungsplan (nur Bauanzeige statt Bauantrag erforderlich)
– Erschließung Abwasser, Trinkwasser, Medien anliegend
– Grundstück direkt vom Eigentümer
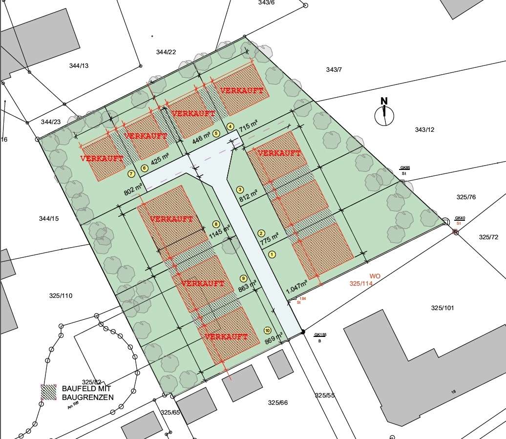
Bei dem hier angebotenen Grundstück handelt es sich um das Grundstück Nr. 1 im Lageplan. Gerne können Sie uns auch zu einem der anderen noch nicht reservierten Grundstücke kontaktieren.
Wir haben Ihr Interesse geweckt? Dann melden Sie sich bei uns.
Sehr gern stehen wir Ihnen für eine individuelle Besichtigung des Grundstücks zur Verfügung.




