Angeboten wird ein gesichert bebaubares und bauträgerfreies Grundstück in Bad Lausick. Das Grundstück ist besonders geeignet für die Bebauung mit einem Einfamilienhaus. Der Bebauungsplan ermöglicht einen 1-2-geschossigen Hausbau mit einer Dachneigung bis 10° und begrüntem Flachdach. Die Voraussetzung der Nutzung Erneuerbarer Energien liegen vor. Die Erschließungsstraße ist bereits fertig errichtet, alle notwendigen Medien liegen an.
Was bieten wir:
– bebaubares Grundstück mit gültigem Bebauungsplan (nur Bauanzeige statt Bauantrag erforderlich)
– Erschließung Abwasser, Trinkwasser, Medien anliegend
– ohne Bauträgerbindung
– Grundstück direkt vom Eigentümer
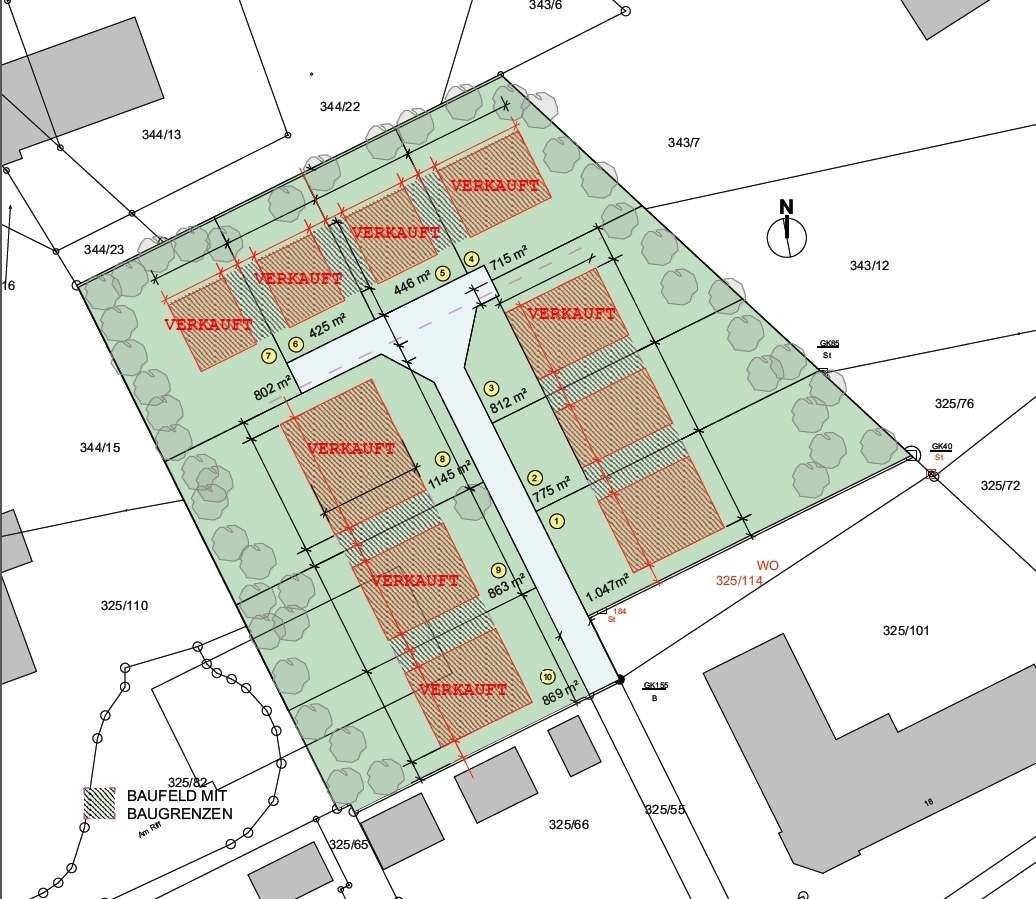
Bei dem hier angebotenen Grundstück handelt es sich um das Grundstück Nr. 2 im Lageplan. Gerne können Sie uns auch zu einem der anderen noch nicht reservierten Grundstücke kontaktieren.
Wir haben Ihr Interesse geweckt? Dann melden Sie sich bei uns.
Sehr gern stehen wir Ihnen für eine individuelle Besichtigung des Grundstücks zur Verfügung.





